Продается однокомнатная квартира
Мой Ритм жилой комплекс ПК9, район Советский
29.01.2026




























Стоимость
10 368 162 ₽
314 186 рублей за м2
314 186 рублей за м2
Количество комнат
1 комн
Общая площадь
33 м²
Этаж
2 из 10
Несуществующий объект, неправильная информация? - обязательно сообщите.
Дополнительная информация:
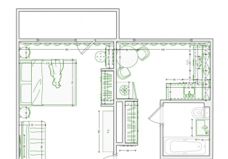
продается 1 еврокомнатная квартира 77 площадью 33,21 кв.м на 2 этаже в строящемся доме проекта мой ритм компании ак барс дом.жк мой ритм современный жилой комплекс в одном из лучших районов казани, на пересечении пр. победы и ул. сахарова, рядом со строящейся станцией метро.преимущества школы, детские сады, поликлиника в шаговой доступности. рядом горкинскоометьевский парк, трц мега и obi, агропарк экологичные детские площадки, спортивные зоны с резиновым покрытием, озеленение. огромный игровой парк озеро дракона с зонами активности и отдыха. безопасный двор без машин, видеонаблюдение по периметру. просторный подъезд с колясочной, вход на уровне земли.проект мой ритм занял призовые места в номинациях лучший жилой комплексновостройка в татарстане и лучший проект в рф, масштабная застройка свободных территорий по версии единого ресурса застройщиков рф.удобная планировка уютная и продуманная 1комнатная квартира с просторной жилой комнатой и кухней. удачное зонирование на гостевое и личное пространство. кухонный гарнитур предусмотрен в нише, чтобы зрительно скрыть рабочие процессы. высокие потолки 2, 7 м и прихожая, в которой предусмотрена ниша для гардеробной.подбор квартирыподбор квартиры, полное юридическое сопровождение сделки бесплатно. наши специалисты помогут вам в решении вопроса приобретения недвижимости с момента консультации до момента передачи ключа от квартиры.
продается 1 еврокомнатная квартира 77 площадью 33,21 кв.м на 2 этаже в строящемся доме проекта мой ритм компании ак барс дом.жк мой ритм современный жилой комплекс в одном из лучших районов казани, на пересечении пр. победы и ул. сахарова, рядом со строящейся станцией метро.преимущества школы, детские сады, поликлиника в шаговой доступности. рядом горкинскоометьевский парк, трц мега и obi, агропарк экологичные детские площадки, спортивные зоны с резиновым покрытием, озеленение. огромный игровой парк озеро дракона с зонами активности и отдыха. безопасный двор без машин, видеонаблюдение по периметру. просторный подъезд с колясочной, вход на уровне земли.проект мой ритм занял призовые места в номинациях лучший жилой комплексновостройка в татарстане и лучший проект в рф, масштабная застройка свободных территорий по версии единого ресурса застройщиков рф.удобная планировка уютная и продуманная 1комнатная квартира с просторной жилой комнатой и кухней. удачное зонирование на гостевое и личное пространство. кухонный гарнитур предусмотрен в нише, чтобы зрительно скрыть рабочие процессы. высокие потолки 2, 7 м и прихожая, в которой предусмотрена ниша для гардеробной.подбор квартирыподбор квартиры, полное юридическое сопровождение сделки бесплатно. наши специалисты помогут вам в решении вопроса приобретения недвижимости с момента консультации до момента передачи ключа от квартиры.
Похожие однокомнатные квартиры в районе Советский





