Продается двухкомнатная квартира
Кремлевская 2А/4, район Вахитовский
07.11.2025





























Стоимость
14 500 000 ₽
263 636 рублей за м2
263 636 рублей за м2
Количество комнат
2 комн
Общая площадь
55 м²
Этаж
6 из 6
Несуществующий объект, неправильная информация? - обязательно сообщите.
Дополнительная информация:
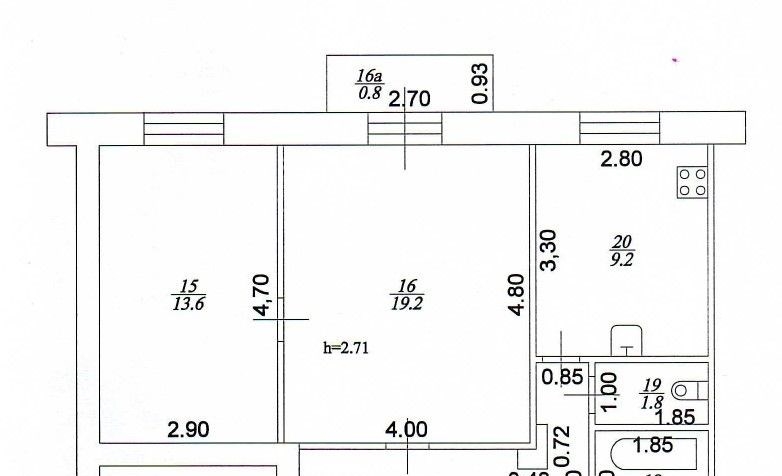
продаётся светлая и уютная 2комнатная квартира в историческом центре города казани на улице кремлевская,2а квapтиpа находится в шаговой доступности от ключевых городских объектов казанский кремль и другие культурные достопримечательности, парк черное озеро, станции метро кремлевская в 5 минутах пешком.идеальный вариант для комфортной жизни или удачного вложения спрос на аренду в этом районе стабильно высокийо доме год постройки 1960 год, проверенный временем квартира находится на 6 этаже из 6 высоченные потолки 3 м железобетонные перекрытия огороженный, спокойный, зелёный двор парковочные места во дворе, за шлагбаумом, всегда в наличии дом оборудован центральным отоплением и качественными инженерными системами, также всегда будет горячая водагазовая колонка. планировка просторная кухня 9,2 кв.м. две просторные изолированные комнаты 13,6 и 19,2 кв. м. идеальный вариант для семьи санузел раздельный удобно для всей семьи вместительная прихожая инфраструктура дом расположен в историческом и тихом районе казани самое сердце города в шаговой доступности лицей им. лобачевского, кфу, детский садик 263, баласити, глобокидс продуктовые магазины, кафе, пекарни, аптеки и парки для отдыха удобный выезд на основные транспортные магистрали условия продажичистая продажа, без обременений,без детских долей, возможна ипотекачетыре взрослых собственника звоните прямо сейчас, чтобы договориться о просмотре квартира идеально подойдёт как для личного проживания, так и для сдачи в аренду. помощь в одобрении ипотеки, полное юридическое сопровождение.
продаётся светлая и уютная 2комнатная квартира в историческом центре города казани на улице кремлевская,2а квapтиpа находится в шаговой доступности от ключевых городских объектов казанский кремль и другие культурные достопримечательности, парк черное озеро, станции метро кремлевская в 5 минутах пешком.идеальный вариант для комфортной жизни или удачного вложения спрос на аренду в этом районе стабильно высокийо доме год постройки 1960 год, проверенный временем квартира находится на 6 этаже из 6 высоченные потолки 3 м железобетонные перекрытия огороженный, спокойный, зелёный двор парковочные места во дворе, за шлагбаумом, всегда в наличии дом оборудован центральным отоплением и качественными инженерными системами, также всегда будет горячая водагазовая колонка. планировка просторная кухня 9,2 кв.м. две просторные изолированные комнаты 13,6 и 19,2 кв. м. идеальный вариант для семьи санузел раздельный удобно для всей семьи вместительная прихожая инфраструктура дом расположен в историческом и тихом районе казани самое сердце города в шаговой доступности лицей им. лобачевского, кфу, детский садик 263, баласити, глобокидс продуктовые магазины, кафе, пекарни, аптеки и парки для отдыха удобный выезд на основные транспортные магистрали условия продажичистая продажа, без обременений,без детских долей, возможна ипотекачетыре взрослых собственника звоните прямо сейчас, чтобы договориться о просмотре квартира идеально подойдёт как для личного проживания, так и для сдачи в аренду. помощь в одобрении ипотеки, полное юридическое сопровождение.
Похожие двухкомнатные квартиры в районе Вахитовский





